LOS PRODUCTOS DE DPM CUMPLEN LA ECODESIGN 2022 (Normativa europea de eficiencia energética de obligado cumplimiento)

Hogares de leña calefactores Technical
El principal objetivo de Technical es ofrecer a los clientes productos de alta calidad y de larga durabilidad. Por ello, los espesores son superiores a la competencia en un 20% - 30%, además, la gama de inserts y hogares es amplísima, existiendo un producto para cada necesidad que tenga el cliente.
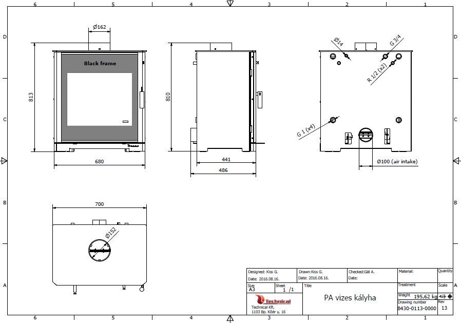
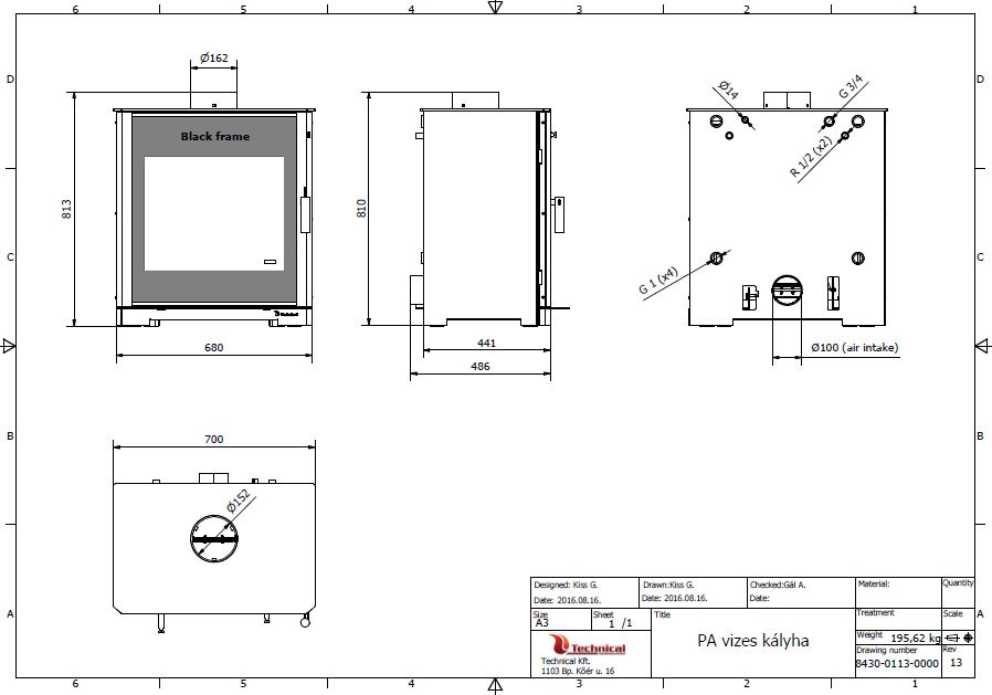
A continuación puede ver las características de la Panaqua stove:





