LOS PRODUCTOS DE DPM CUMPLEN LA ECODESIGN 2022 (Normativa europea de eficiencia energética de obligado cumplimiento)

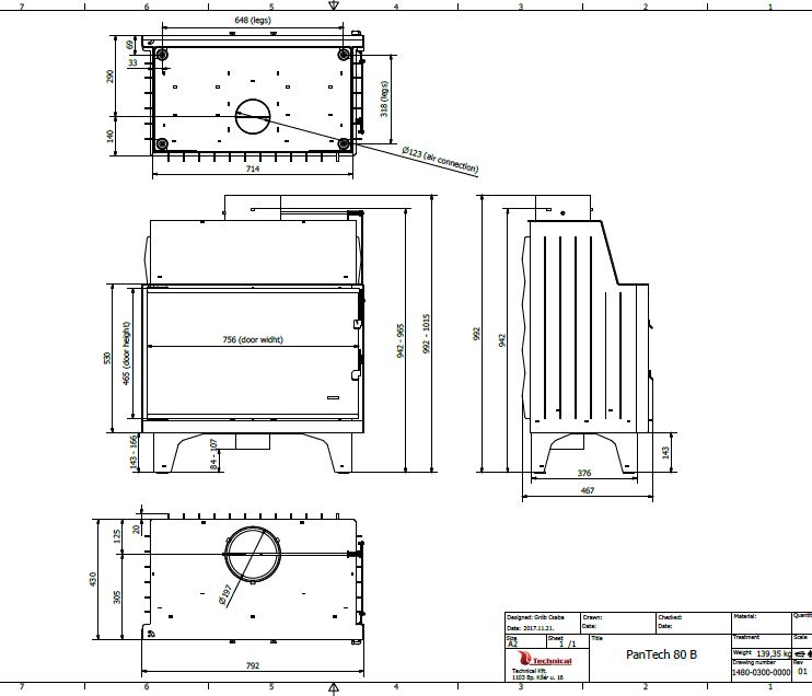
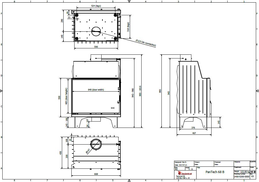
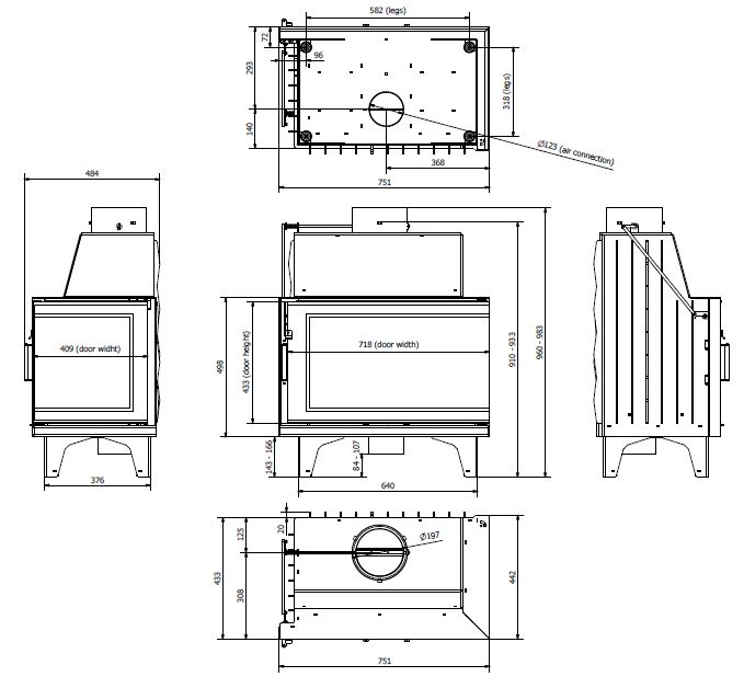
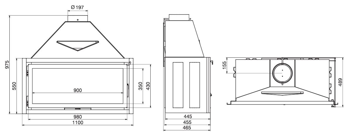
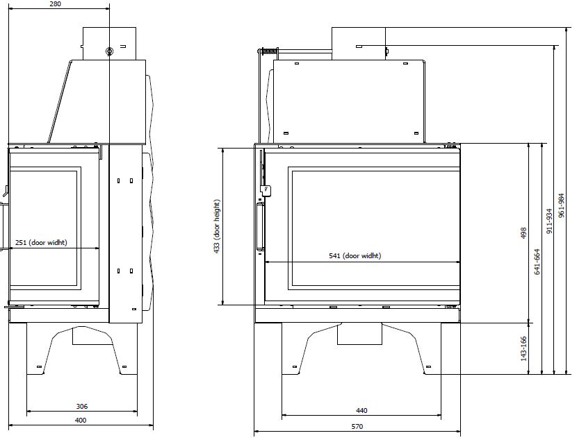
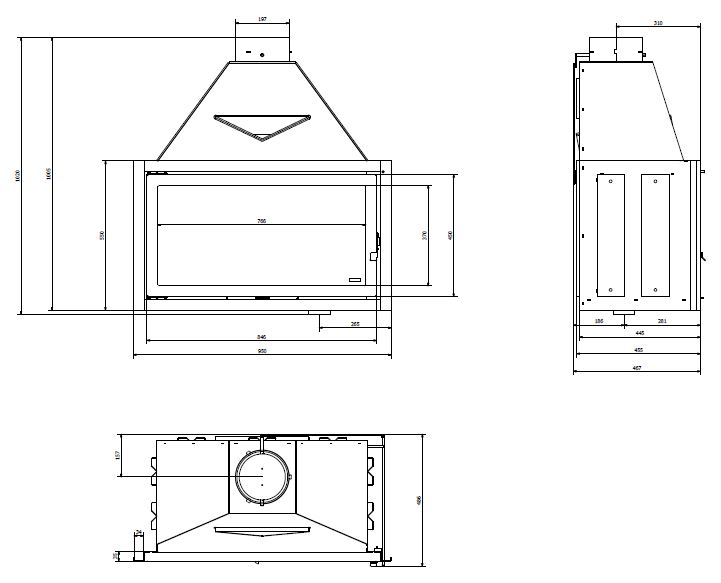
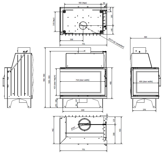
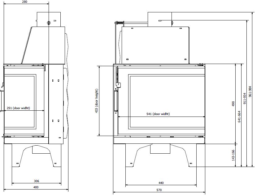
Hogares leña acero Technical Pantech
El principal objetivo de Technical es ofrecer a los clientes productos de alta calidad y de larga durabilidad. Por ello, los espesores son superiores a la competencia en un 20% - 30%. Esto hace que existan garantías de 5 y 7 años según el modelo. Además, la gama de inserts y hogares es amplísima, existiendo un producto para cada necesidad que tenga el cliente. En la categoría de hogares estamos ante uno de los mejores fabricantes del mercado y prueba de ello es que Technical ha obtenido las mas altas calificaciones en recientes pruebas de prestigiosos y exigentes laboratorios.
Pinche sobre el catálogo técnico de Technical donde podrá ver todas las opciones:
A continuación toda la gama de los Hogares de leña Technical Pantech con puerta normal:











































































