LOS PRODUCTOS DE DPM CUMPLEN LA ECODESIGN 2022 (Normativa europea de eficiencia energética de obligado cumplimiento)

Hogares leña fundición Technical
El principal objetivo de Technical es ofrecer a los clientes productos de alta calidad y de larga durabilidad. Por ello, los espesores son superiores a la competencia en un 20% - 30%. Esto hace que existan garantías de 5 y 7 años según el modelo. Además, la gama de inserts y hogares es amplísima, existiendo un producto para cada necesidad que tenga el cliente. En la categoría de hogares estamos ante uno de los mejores fabricantes del mercado y prueba de ello es que Technical ha obtenido las mas altas calificaciones en recientes pruebas de prestigiosos y exigentes laboratorios.
A CONTINUACIÓN LA GAMA DE HOGARES DE FUNDICIÓN TECHNICAL:
PANTHERM 62: Puede elegir entre salida de humos 150 mm o 200 mm
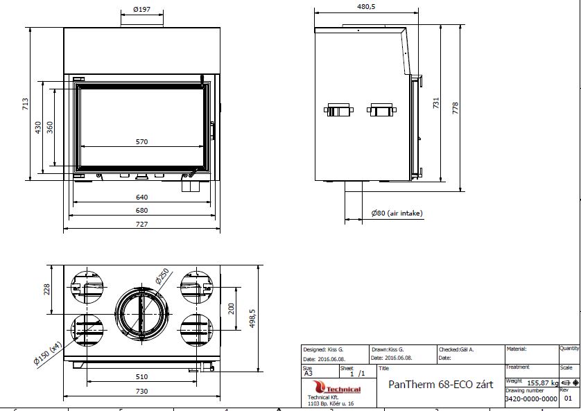
PANTHERM 68: Puede elegir entre 150 mm o 200 mm
PANTHERM 68 LD: Puede elegir entre salida de humos 150 mm o 200 mm
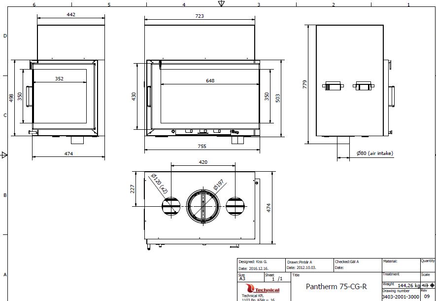
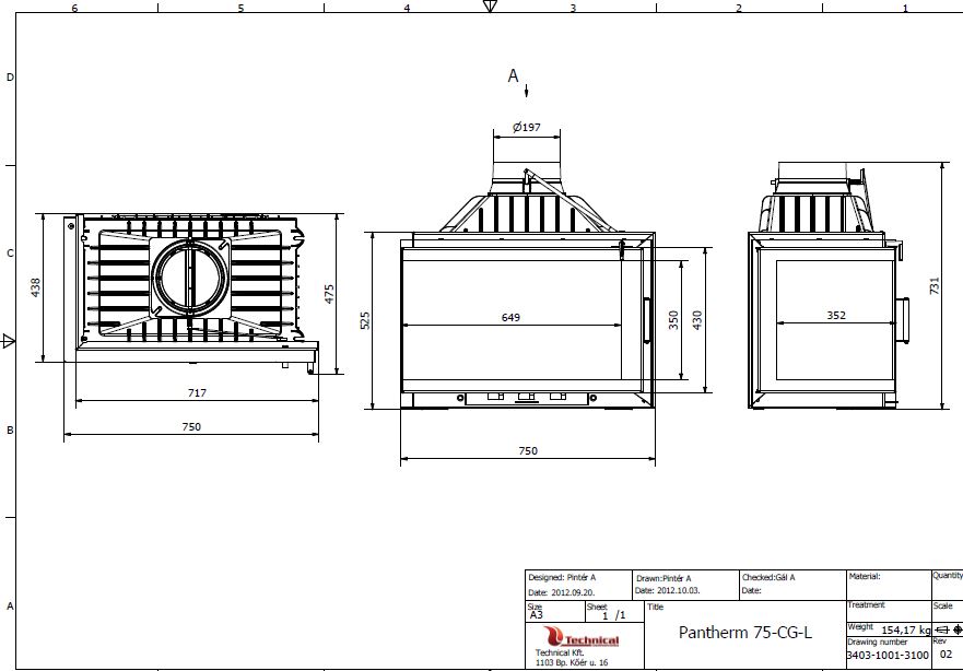
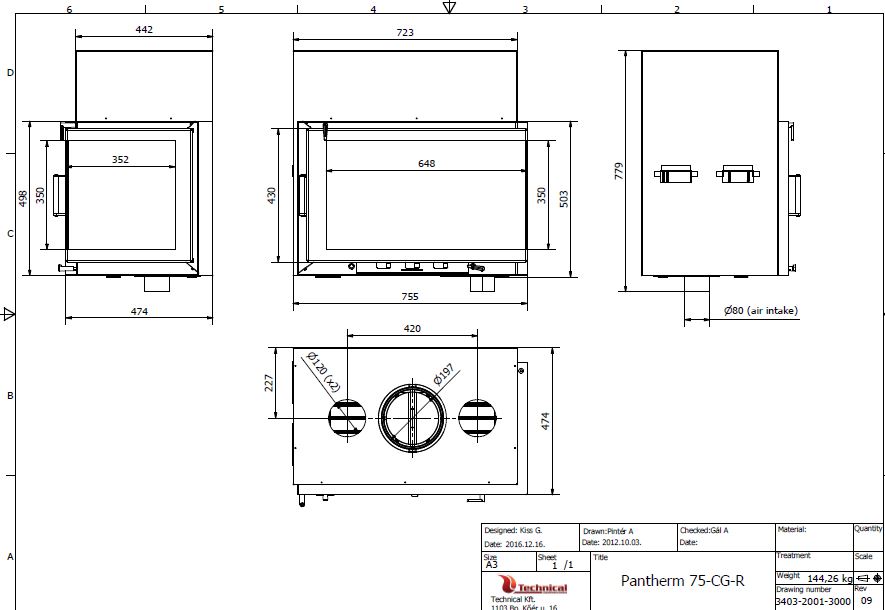
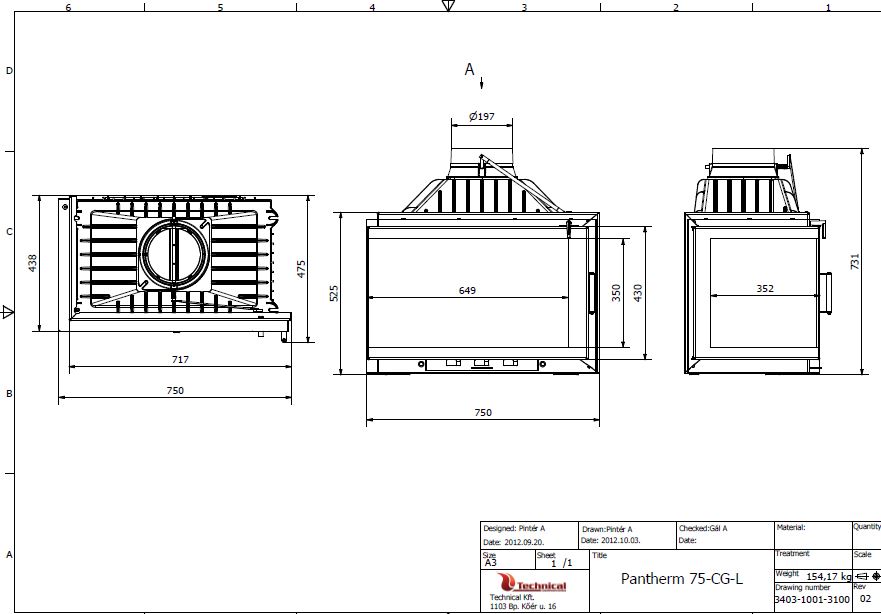
PANTHERM 69 CG R / L: Puede elegir entre salida de humos 150 mm o 200 mm
Los modelos tienen multitud de opciones. Se suplementa la fabricación con Toma de aire exterior, el sistema Ecoplus (control total del tiro para una combustión óptima y mas eficiente), las patas niveladoras, la caja de convección, la puerta tipo guillotina, Ventanas extras (incluido tipo Túnel), el marco con acabado color negro cristalizado...
El sistema Ecoplus contiene el sistema Eco (control extra del aire secundario) + Toma de aire exterior + controlador del aire secundario.

Un ejemplo de las múltiples opciones que hay:
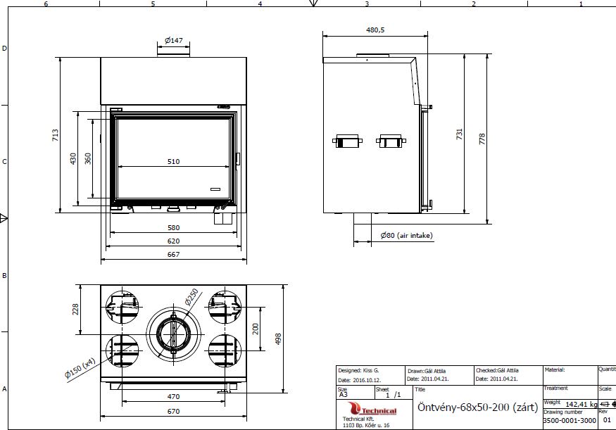
Pinche sobre el catálogo técnico de Technical donde podrá ver todas las opciones y todas las cotas y distancias:
A continuación el manual de usuario Technical:
Incidimos en la importancia de aparatos robustos, con buenos espesores, lo que trae consigo una mayor durabilidad y vida útil de los aparatos.







































